
来源:建筑安全技术与管理
花篮拉杆工具式悬挑架施工工法
01
前言
随着城市建设的飞速发展,高层及超高层建筑物的不断增多,施工环境愈趋复杂,为了满足结构施工和外装饰施工的需要,悬挑式钢管扣件外脚手架因其适应性广、承载能力强、搭设与拆除方便等特点受到了广泛的应用。但以往的悬挑脚手架放置的工字钢,楼面放置的长度大于悬挑的长度,不仅浪费工字钢,同时也给后续的施工带来了不便。江苏南通二建集团有限公司承建的青城苑项目使用了一种新型的悬挑脚手架,既节约了工字钢的材料,又给装修施工带来了方便。
为了将此项技术推广应用,通过组织技术人员进行攻关形成了本工法,并进一步推广到杭州明珠金陵国际大酒店,重庆市人民医院东方医院,技术人员通过对此工法的进一步提炼获得了花篮拉杆式脚手架实用新型专利和南京市建筑业协会颁发的QC二等奖。
02
工法特点
2.1本工法操作方便,适应范围广,安全可靠。
2.2本工法改变了传统用钢丝绳卸载的施工方法,改用梁端上部用Φ20钢筋连接,由花篮螺栓拧紧受力可起到固定、卸荷、减轻钢梁支座弯矩作用,且花篮螺栓和钢筋可回收二次利用,与常规使用的钢丝绳比较更安全,且经济合理,降低成本。
2.3本工法将传统工字钢悬挑梁受力变为简支梁受力,工字钢截面特征呈对称,受力明确,钢梁尾端用螺栓固定,钢梁悬挑端上部由花篮螺栓拧紧受力,属于轴心受力的最佳状态,抗弯性能较好。
2.4本工法改变了传统型钢梁在楼面锚固的施工方法,改用型钢挑梁由螺栓固定在建筑物上,悬挑钢梁长度比传统悬挑钢梁缩短一半以上,降低了成本,而且悬挑钢梁不必伸入建筑物内,无需墙面预留洞口,墙面施工时无须再次封补,对后续作业楼层面地坪施工不影响,无需等悬挑钢梁拆除后再进行地坪施工,降低了洞口渗水的质量通病又缩短了工期。
2.5本工法悬挑钢梁上部基本与混凝土楼层面持平,铺上旧模板后防护到位,便于清理。
03
适用范围
适用于高层建筑主体结构四周悬挑阳台较少建筑,尤其适用于框架结构。
04
工艺原理
悬挑架结构体系由水平钢梁和花篮螺杆两部分组成。斜拉式悬挑架,型钢梁的力学模型为简支结构,挑梁由工字钢一端固定于主体结构,挑梁与建筑物之间连结采用经热处理的10.9级的高强螺栓,斜拉式园钢拉杆固定在上部主体结构上,斜拉杆、通过钢板相互连接,由花篮螺栓拧紧受力,组成一个三角形型钢承重体系。
05
施工工艺流程及操作要点
5.1.工艺流程
搭设准备工作→悬挑架体材料制作→悬挑架体材料检查→墙体圈梁埋设套管→安装悬挑工字钢挑梁→安装花篮斜拉杆→拧紧花篮、调整悬挑梁端头高度→验收→进行上部脚手架搭设(包括拉墙钢管搭设)→根据现场情况拆除临时脚手架
5.2.搭设悬挑架准备工作
熟悉工程建筑结构施工图、编制悬挑架及脚手架施工组织设计。根据施工图确定脚手架分段高度(每段不宜超过28m)确定悬挑架沿建筑物纵向间距,确定悬挑架使用类型(普通型、加长型、超长型)数量,发现现场情况与设计型号相抵触时,及时与技术部门沟通协调,修改设计。在此基础上绘制悬挑脚手布置平面图和剖面图,作为施工组织内容之一。
5.3悬挑架体材料制作
5.3.1工字钢端部铁板下料和焊接
1、根据选定的16#工字钢的长度和铁板的大小及厚度绘制加工平面图,见下图,对工人进行交底,现场用氧气切割下料,同时也可委托加工厂进行成品加工。


图5.3.1-1 钢板加工平面图
































图5.3.1-2 工字钢及钢板现场下料图















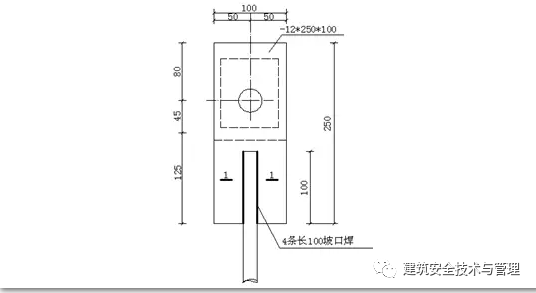
2、取工字钢长1.5米,距工字钢前端10公分处焊接Φ22*30㎜钢筋头,以稳固脚手架立杆,距焊接钢筋头15公分处焊接100*100*12㎜铁板一块,末端采用200*220*12㎜铁板与工字钢焊接,孔距为110㎜,见图5.3.1-3。点这免费下载施工技术资料

















图5.3.1-3 工字钢及钢板现场焊接图















5.3.2花篮螺栓的加工
1、根据方案计算后选定的螺栓形状、尺寸、规格进行下料切割,绘制花篮螺栓的加工平面图,对工人进行交底后现场加工,见图5.3.2-1。
2、取Φ20*1.6米、Φ20*1.0米碳素优质钢与三根Φ14碳素优质钢进行双面焊接,加工成型的花篮螺栓进行组合安装(正反牙具),见图5.3.2-2。



















图5.3.2-1 花篮螺栓加工平面图
































图5.3.2-2 花篮螺栓现场加工图















5.3.3拉杆制作与焊接
1、将上、下拉杆与耳板绘制加工平面图,并对工人进行交底,现场切割下料,见图5.3.2-3~见图5.3.2-6。
2、上端Φ20*1.6米碳素优质钢与250*10*12㎜铁板弯曲成20度(根据楼层面而定),打孔切割槽距(槽距为20*100)后进行坡口焊接,见图5.3.2-7。
3、下端Φ20*1.0米碳素优质钢与250*10*12㎜铁板(根据楼层面而定),打孔切割槽距(槽距为20*100)后进行坡口焊接,见图5.3.2-8。

















图5.3.2-3 上拉杆与建筑物拉结剖面图
































图5.3.2-4 上拉杆平面加工图
































图5.3.2-5 坡口焊剖面图
































图5.3.2-6 下拉杆及连接板加工平面图
































图5.3.2-7 拉杆现场加工图
































图5.3.2-8 连接板现场加工图















5.4对悬挑架构配件检查
将悬挑架构配件,对照施工组织设计要求进行全数检查。核对型号、规格、数量、构件外形变化,连结板缺陷,螺栓孔与螺栓匹配,填写检查表。
5.5.梁内套管预埋
5.5.1顶板模板支设完成后,梁外模合模前,根据限制的脚手架工字钢平面布置图,精确在模板面上放出定位线,见图5.5.1。

















图5.5.1 螺栓孔放线图















5.5.2上端:在工字钢悬挑的上楼层对应处预埋25*200㎜套管一根,套管两端采用胶带封闭,焊接在梁、墙柱上;
5.5.3下端:悬挑前高强螺栓套管预埋采用Φ25*200㎜空心钢管预埋,两头用胶带封闭,埋入钢筋绑扎梁、墙柱中进行焊接固定,转角处采用200*220*12㎜铁板预埋;
5.5.4套管预埋好后,派专人对套管的平面布置尺寸和高度位置进行复核,确保套管的位置偏差减小到最小。
5.5.5混凝土浇筑过程中,应派专人跟踪作业,严禁在有预埋套管的位置下料,在振捣过程中,操作人员严禁碰撞套管。
5.6工字钢的安装
5.6.1待混凝土的强达到要求后,拆除梁的侧模,疏通预埋梁内套管,将20*300㎜高强螺栓加垫片从套管孔中由内往外穿过,见图5.6.1。

















图5.6.1 高强螺栓放置图















5.6.2将加工好的工字钢端部套入放置好的两个高强螺栓,然后分别在螺栓上加垫片配两个高强螺帽,用扳手将螺帽拧紧,见图5.6.2。点这免费下载施工技术资料

















图5.6.2 工字钢紧固图















5.6.3对于转角处工字钢由于预埋螺栓无法预埋和角度受限,转角处必须放置的工字钢可采用钢板,再根据现场实际情况,现场将工字钢与钢板焊接,见图5.6.2。


图5.6.2 转角处工字钢焊接图

5.7脚手架扫地杆搭设
5.7.1待悬挑工字钢全部安装就位后,在工字钢上先布设悬挑架扫地杆,扫地杆布设好后,将立杆套在钢筋头上,并与扫地杆连接牢固,见图5.7.1。


图5.7.1 悬挑架扫地杆布设图

5.7.2依据普通脚手架搭设要求完成悬挑层架体的搭设。
5.8花篮螺栓上下拉杆安装
5.8.1待悬挑上一层混凝土达到强度后,拆除梁侧模,将高强螺栓加垫片从套管中由内往外穿出,并将上拉杆的耳板与高强螺栓用双螺母加垫片固定牢固。
5.8.2将下拉杆与工字钢上的耳板用高强螺栓加垫片进行初步固定,待上拉杆伸入后牢固固定,见图5.8.3-1。
5.8.3将花篮螺栓孔与下拉杆丝扣对接不断旋转,然后松开耳板螺丝,将花篮螺栓伸入上拉杆丝扣旋转,直至旋转不动,然后用工具将花篮螺栓旋转至下拉杆耳板与工字钢耳板正好可以伸入高强螺栓后,及时穿入螺栓并拧紧螺栓,见图5.8.3-2。


图5.8.3-1花篮螺栓与下拉杆连接图



图5.8.3-2花篮螺栓与上拉杆连接图

5.8.4最后用工具将花篮螺栓旋转至旋转不动,确认拉杆拧紧后,结束上下拉杆的安装,见图5.8.4。


图5.8.4 花篮螺栓紧固图

5.8.5悬挑层脚手架搭设完成后,及时用旧模板将悬挑层封闭处理,见图5.8.5。


图5.8.5 悬挑架内立面图

5.9维护
5.9.1拉结拉好,应对所有牙具采用黄油包裹保护;
5.9.2定期检查花篮螺栓是否锈蚀、松动。
06
材料与设备
6.1加工制作材料要求
加工悬挑架的主要材料、零部件,成品件,标准件等产品均进行验收。
6.1.1钢材的品种、规格、性能等应符合国家产品标准和设计要求。检查数量:全数检查。
6.1.2钢板厚度及允许偏差应符合其产品标准要求,检查数差,每一品种规格的钢板抽查5处。
6.1.3型钢的规格尺寸及允许偏差应符合产品标准要求。
检查数量:每一品种、规格的型钢抽查5处。
检查方法:钢尺和游标卡尺量测。
6.1.4钢材表面外观质量除应符合国家现行有关标准的规定外,尚应符合以下要求:
(1)当钢材的表面有锈蚀麻点或划痕等缺陷时,其深度不得大于该钢材厚度允许偏差值的1/2
(2)钢材表面锈蚀等级应符合现行国家规范标准(涂装前钢材表面锈蚀等级和除锈等级)GB8923规定的C级及C级以上。
(3)钢材端边或断口处不应有分层、夹渣等缺陷。
检查数量:全数检查
检查方法:观察检查。
6.2焊接材料要求
6.2.1 焊接材料、品种、规格、性能等应符合现行国家产品标准和设计要求。
检查数量:全数检查
检查方法:检查焊接材料和质量合格证书文件、中文标志及检验报告。
6.2.2拉杆、连接钢板。焊接材料应进行抽样复验。复验结果应符合现行国家产品标准和设计要求。
检查数量:全数检查
检查方法:检查复验报告
6.2.3焊条外观:不应有药皮脱落。焊芯生锈等缺陷:焊剂不应受潮结块。
检查数量:按量抽查1%,且不应小于10包。
检查方法:观察检查。
6.3连接用紧固标准件
6.3.1主要材料
高强度大六角头螺栓连接,副、扭剪型高强螺栓连接副用的高强螺栓,其品种、规格、性能等应符合现行国家产品标准和设计要求,出厂时应分别随箱带有扭矩系数和紧固力(预应力)的检查报告等。
6.3.2高强度六角头螺栓连结按规范附录B的规定检验其扭矩系数,其检验结果应符合附录B的规定。
6.3.3高强螺栓连结,应按包装箱配套供货,包装箱上应标明批号、规格、数量、日期、螺栓、螺帽、垫圈外观表面应涂油保护,不应出现生锈和沾染脏污,螺纹不应损伤。
检查数量:按包装箱数量抽查5%且不应小于3箱
检查方法:观察检查。
6.3.4涂装材料
钢结构防锈涂料、稀释剂和固化剂等材料的品种、规格、性能等应符合现行国家产品标准和设计要求。
检查数量:全数检查。
检查方法:检查产品的质量合格证明文件、中文标志及检验报告等。
6.4焊接焊缝要求
6.4.1焊条、焊剂等焊接材料,与母材匹配应符合设计要求及国家现行行业标准(建筑钢结构焊接技术规程)JGJ81的规定。
检查数量:全数检查
检查方法:检查质量证明书和烘焙记录。
6.4.2焊工必须经考试合格并取得合格证书。持证焊工必须在其考试合格项目及其认可范围呢施焊。
检查数量:全数检查。
检查方法:检查焊工合格证及其认可范围的有效期。
6.4.3设计要求全焊透的一、二级焊缝应采取超声波探伤进行内部缺陷的检验。
一级、二级焊缝的质量等级及缺陷分级应符合下表的规定:
检查数量:全数检查
检查方法:检查超声波探伤记录。


表6.1

6.4.4焊缝表面不得有裂缝、焊瘤等缺陷。一级、二级焊缝不得有表面气孔、夹渣、弧坑裂缝、电弧擦伤等缺陷。且一级焊缝不得有咬边、未焊满根部收缩等缺陷。
检查数量:每批同类构件抽查10%,且不应少于3件,被抽查构件中每一类型焊缝按条数抽查5%,且不应少于1条,每条检查1处,总抽查数不应少于10处。
检查方法:观察检查或用放大镜、焊缝量规和钢尺检查。
6.4.5对一般项目检查:对二级、三级焊缝外观质量标准符合规范附录A中表A.0.1规定。焊缝尺寸允许偏差符合A.0.2的规定。焊缝感观应达到:外形均匀,成型较好,焊道与焊道、焊道与基本金属间过度较平滑,焊渣和飞溅物基本清楚干净。
检查数量:每批同类构件抽查10%且不少于3件,被抽查的构件中,每种焊缝按数量各抽查5%,总抽查处不少于5处。
检查方法:观察检查。
6.5紧固件连结
高强度螺栓连结。高强度大六角头螺栓连结终拧完成1h后48小时内应进行终拧扭矩检查,检查结果应符合本规范附录B的规定。


螺栓预应力值范围(KN)
表6.2

6.6钢零件及钢部件加工
6.6.1切割主控项目
(1)钢材切割面或剪切面应无裂缝、夹渣、分层和大于1mm的缺陷
检查数量:全数检查
检查方法:观察或用放大镜及百分尺检查
(2)气割允许偏差符合下表规定


表6.3

6.6.2制孔
(1)制孔主控项目:A、B级螺栓孔(I类孔)应具有H12的精度,孔壁表面粗糙度R。不应大于12.5Um。其孔径允许偏差符合下表规定。


表6.4

检查数量:按钢材数量抽查10%,且不应少于3件
检查方法:用游标卡尺或孔径量规检查。
6.7组装
6.7.1焊接连接组装的允许偏差应符合下表规定


检查数量:按构件数抽查10%,且不少于3个检查方法:用钢尺检验

6.7.2顶紧接触面应有75%以上的面积紧贴。
检查数量:按接触面积的数量抽查10%,且不应少于10个
检查方法:用0.3mm塞尺检查,其塞入面积应少于25%,边缘间隙不应大于0.8mm。
6.7.3安装焊缝坡口的允许偏差符合下表


表6.6

检查数量:按坡口数量抽查10%,且不应少于3条。
检查方法:用焊缝量规检查。
6.8钢构件外形尺寸
钢构件外形尺寸主控项目的允许偏差应符合下表
6.8.1挑梁面:
(1)套坚钢管短钢筋头 ±5.0
(2)斜拉杆下端连结板 ±3.0
(3)挑梁端头连结板 ±3.0
(4)挑梁端头连结板上螺栓孔偏位 ±2.0
6.8.2斜拉杆与连结板偏位
(1)螺栓孔偏位 ±2
(2)连结板偏位 ±2
6.9主要机具
本工法所需的施工机械、设备为工地常见机械、设备,无需增加投资另外购置,主要电焊机、气割设备、塔吊,具体如下:
(1)测量放线与检测:水准仪、经纬仪、钢卷尺、力矩扳手、水平尺。
(2)安装工具:电焊机、气割设备、锤子、扳手、配合塔吊。
(3)电源:配电箱、开关箱、动力电缆。
07
质量控制
7.1本悬挑架承受脚手架最大高度不应超过28m。
7.2悬挑架沿建筑物纵向间距为1.40~1.50,个别转角处外排脚手立杆最大间距≤1.70。
7.3悬挑架斜拉杆上端与下端垂直距离≥2.80,仰角不能太小。普通型挑梁斜拉杆仰角大于55°。斜拉杆下端必须靠近外排脚手立杆,不得随意改变下拉连结板位置。
7.4超长型悬挑梁斜拉杆采用双根斜拉杆,不得有误。
7.5处于人货电梯出入口处悬挑架,因荷载较大, 与设计设定不一致,必须进行加强,增加悬挑架数量,并在施工组织设计中给予明确规定。
7.6悬挑梁斜拉杆上拉点,及挑梁下撑点,预留螺栓孔位置、规格正确。上拉点、下撑点。通常设于砼圈梁处或边梁边处。
7.7斜拉杆上拉点铁板外侧配备70*70*8压板,在压板外配设双螺母,螺栓端外露长度≥1只螺母厚度。确保该点使用可靠不变形。
7.8悬挑架完成后,由项目部技术负责人召集,项目经理参加的质量员、安全员、挑架制安负责人进行验收,验收内容如下:
(1)材料品种、规格,制作焊缝,查对制作时检查记录。
(2)悬挑架与建筑物连结时砼强度达到设计值80%以上。
(3)穿墙高强螺栓品种、规格符合设计要求
(4)螺栓、垫圈或垫板、压板不得漏缺。
(5)拧紧高强螺栓抽查5%,8.8级Φ20螺栓预应力值达120KN,不合格数不得大于抽查数10%。
(6)挑梁间距纵向允许偏差不超过±50mm。
(7)挑梁必须水平、水平度小于L/1000,且不得大于20。
(8)挑梁间高差不超过±20
7.9使用过程中,根据工程特点分为以下几个阶段进行检查
(1)悬挑钢梁安装固定完毕后架子搭设前,主要检查安装的尺寸位置,安装是否牢固,顶板混凝土强度是否达到要求。
(2)作业层上施加施工荷载前
(3)每搭完10~13m高度后
(4)达到设计高度后
(5)遇有六级大风与大雨后
(6)停用超过一个月
除了按以上几个阶段进行检查外,项目安全部门每周必须对架子进行不少于二次的周检,技术部门安排测量人员及时做好架子的变形观测,观测项目主要是架子的垂直度和变形。
7.10架子每次的检查验收均由安全检查部门做好检查记录,纳入安全资料内存档。架子验收和定期检查的主要项目:
(1)杆件的设置和连接,连墙件、支撑、卸料平台处的构造
(2)扣件螺栓是否松动
(3)架子的变形
(4)安全防护措施
(5)是否超载
08
安全措施
8.1登高架设作业人员(架子工),必须经专业安全技术培训,考试合格,持特种作业操作证上岗作业。
8.2登高架设作业人员(架子工)在施工过程中要正确使用个人安全防护用品,着装必须灵便(紧身紧袖),在高处作业时,必须穿防滑鞋,佩戴安全带。
8.3在进行悬挑脚手架搭设之前,必须组织搭设人员,认真领会脚手架专项安全施工组织设计和安全技术措施交底的要求,研讨搭设方法,明确分工,并派1名技术好、有经验的人员负责搭设技术指导和监护。
8.4风力六级以上(含六级)强风和高温、大雨、大雪、大雾等恶劣天气,应停止脚手架德的搭设与拆除作业。风、雨、雪过后要进行检查,发现倾斜下沉、松扣、崩扣要及时修复,合格后方可使用。
8.5脚手架要结合工程进度搭设,搭设未完的脚手架,在离开作业岗位时,不得留有未固定构件和不安全隐患。
8.6工程负责人、安全员、架子工班长应按脚手架搭设的进度分段对脚手架验收,并填写《施工脚手架验收表》,经验收合格后方可投入使用。
8.7高处作业所用的物料应堆放平稳,工具应随手放入工具袋,拆卸下的物体、剩余材料和废料等都要加以清理和及时运走,不得任意乱掷或向下丢弃。传递物体时不能抛掷。
8.8所有安全防护设施和安全标志等,任何人不得毁损或擅自移动或拆除。确因作业需要而暂时拆除或变动安全防护设施时,必须报请批准后才能拆除,并在作业完成后进行复原。
8.9施工现场安全员要每天对脚手架进行安全检查,尤其是对固定工字钢的高强螺栓、焊缝、花篮螺杆、连墙件、脚手板、兜网、拦腰杆等进行检查,发现问题及时整改。
8.10在脚手架上进行电器焊作业时,要铺铁皮接着火星或移去易燃物,
以免火星点着易燃物。并同时准备防火措施。一旦着火时,及时予以扑灭。
8.11架上作业人员应做好分工和配合,传递杆件时应掌握好重心,平稳传递,材料要轻搁稳放,不需采用倾倒、猛磕或其他匆忙卸料方式。
8.12悬挑脚手架底部与墙体间的间隙用竹夹板封堵严密,预防物体从中坠落。
8.13利用悬挑的水平工字钢作为水平避雷带,与建筑物防雷引下线之间采用Φ12镀锌钢筋焊接连接,防雷接地电阻组织不大于10Ω。
09
环保措施
9.1搭设脚手架搭设与拆除作业中,材料运输要做到轻拿轻放,以免产生噪声,影响居民的生活。
9.2工字钢、钢管等材料在刷防锈漆和安全警示油漆的过程中防止油漆的滴落,油漆废料不得随意丢弃,以免污染土壤、水体和大气。
9.3遇三级及三级以上风力时,禁止拆除脚手架立面安全网和底部封闭层,以防止扬尘污染。
9.4要严把密目式安全网的质量关,禁止使用非阻燃性安全网,以免产生火灾。废弃的安全网集中回收,不得随意丢弃。
9.5做好施工总平面图的设计与管理,根据现场的实际情况,要做好环境保护。电焊的废气尽量减少,噪声尽量降低,减少电焊弧光刺激。充分利用加工场地,尽量减少在露天烧电焊和预制加工,对不可避免的电焊要采取围护措施。
9.6做好环境保护工作,采取措施防止环境污染,对施工垃圾、固体废弃物集中堆放在指定地点,定期处理,再生资源充分回收
10
效益分析
10.1经济效益
根据新颁发的《建筑施工脚手架技术规范》(130-2011)规定,悬挑钢梁的设计为1:1.25,现工具式悬挑钢梁1.3米,减少了原搁置楼层内的1.7米工字钢和园钢拉环锚固;钢丝绳拉结原每根需要4米钢丝绳、一只花篮螺栓、6只绳卡,钢丝绳每米4元,需费用16元,经测算现每根悬挑钢梁的直接成本费用可节省176元。南京青城03#楼,使用的工具式悬挑式脚手架与普通钢丝绳悬挑脚手架经济投入成本节约了近12万元。
10.2社会效益
工具式悬挑式脚手架确保了安全与美观于一体。大大节约了成本,缩短了工期,预控了外墙渗水等质量通病;
施工方便,假如用普通钢丝绳悬挑脚手架对施工带来了多层地坪施工无法结尾,影响工程整体竣工时间,需要拆了钢丝绳和工字钢后才能浇筑悬挑层地坪,而使用工具式悬挑脚手架可以直接进行地坪施工,化解了脚手架悬挑钢梁对地坪浇筑的影响。最主要的工具式悬挑脚手架可以重复周转利用,既缩短了工期又节约了成本,且降低了安全风险。
11
工程实例
11.1工程实例一
南京青城苑03#幢住宅楼位于南京市江宁开发区将军大道与佛城西路的环岛交汇处,结构类型为框架剪力墙结构,建筑面积73600平方米,开工时间2010年3月,竣工时间2012年11月,楼层为32层,总高度约88.75米。外墙为200厚蒸压轻质加气砼砌块,混合砂浆砌筑,本工程外墙为20厚挤塑板保温墙面,部分为干挂花岗岩墙面。脚手架采用花篮拉杆工具式悬挑脚手架,从5层楼面向上搭设,共分四段悬挑,使用效果良好,得到业主、主管部门的好评。
11.2工程实例二
杭州明珠金陵国际大酒店共由地下室和主楼、裙楼及雨污水处理池组成,其中地下一层,裙楼为框架4层,主楼为剪力墙23层,工程总建筑面积约57000万平方米,开工时间2011年3月,竣工时间2013年11月。脚手架采用花篮拉杆工具式悬挑脚手架,从4层楼面向上搭设,共分三段悬挑,使用效果良好,得到业主、主管部门的好评。
11.3工程实例三
重庆市人民医院东方医院地下一层,地上21层,建筑面积47968.98平方米。地上21层全部为住院部,建筑总高度89.90米。开工时间2011年4月,竣工时间2013年8月,外墙脚手架采用花篮拉杆工具式悬挑脚手架,为方便地下室外墙的防水施工和土方回填,第一步挑架先设在二层楼面,待土方回填沉实浇筑硬地面后再搭设落地脚手架;上部分别在六层、十二层、十八层上设挑架。

