追寻木构——合板格子梁组成互承结构

产品信息2年前发布 admin
75 0 0

1.木结构墙

方钉工社

2.木构框架

Pursuing the timber structureTSUKUBA TECHNICAL CENTER司化成技术中心─   合板格子梁组成互承结构  ─原文首刊于《建筑技艺》AT2018/12撰文|山田宪明        翻译|陆洋

3.木构架建筑

山田宪明构造设计事务所YamadaNoriaki Structural Design office, YSD

追寻木构——合板格子梁组成互承结构

4.木结构墙体施工方案

建筑概要建筑名称    司化成技术中心建设地点    茨城县筑波市建筑设计    吉松秀樹+ Archipro结构设计    山田宪明构造设计事务所建筑面积    328.96m2建成时间    2016年

追寻木构——合板格子梁组成互承结构

5.木构框架结构

图 1 建筑外观(摄影:井上玄)司化成工业筑波技术中心(TSUKUBA TECHNICAL CENTER)是位于郊外的进行包装材料等制造和销售公司的单层木结构办公建筑建筑主体平面是18.4m×18.4m的正方形,高度约为4m,考虑到货运卡车频繁出入的因素,将钢结构柱从地面整体抬升。

6.木构架式建筑

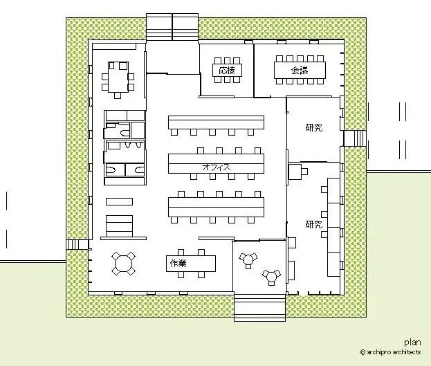
1.2m,而地板以下则是留给设备的开放式空间(图1,2)建筑内部中央 10.4m×10.4m的办公区域,在其外圈是宽度为4m的独立空间(图3)外立面的开口和墙壁交错排布,在欣赏建筑周边风景的同时,有效保护了办公区域的隐秘性(图4)。

7.木构架有哪些优缺点

屋顶的木结构材料,既不是原木也不是胶合木,而是采用以构造用合板(层压板)为主材的互承结构格子梁,以实现最大跨度10.4m×10.4m的无柱空间(图5,6)同时,自然光可以通过屋顶互承结构之间的空隙直接照进室内。

追寻木构——合板格子梁组成互承结构

8.墙面木架造型

图 2 建筑剖面图

追寻木构——合板格子梁组成互承结构

9.木骨架组合墙体技术规范

图 3 建筑平面图

追寻木构——合板格子梁组成互承结构

10.木结构墙体

图 4 开口与墙壁交错分布的建筑外立面(摄影:井上玄)

追寻木构——合板格子梁组成互承结构

图 5 建筑室内(摄影:井上玄)

追寻木构——合板格子梁组成互承结构

图 6 构造用合板组成的互承结构格子梁(摄影:井上玄)

追寻木构——合板格子梁组成互承结构

构造用合板的特征和研究日本的木结构建筑一般是用原木材或者胶合木材等作为主要承重结构,而“构造用合板”(层压板)主要是作为屋顶贴面、地板、墙壁等具有力学特性的  面板结构部件来使用也就是说,承重结构是主角,面板材料是辅助材料。

近年来,新型木材制成的面板材料CLT的应用已经比较成熟,但还没有达到全国性的普及那么,如果不用传统的木材,能否以面板材料作为主要的承重结构,如用“构造用合板”来支撑起整个屋顶呢?本案的设计工作就是由建筑师和结构工程师一同从这个问题开始进行的。

项目中运用的构造用合板(以下简称合板)是由较薄的单板(Venner)在纤维方向上正交、交叠后挤压定型而成,因此成品具有薄、板面较宽且较短的几何特征,同时屈曲强度较低,但抗剪性较高因此,如果垂直布置合板将其设置为梁构件,可以充分发挥其力学性能并满足设计要求,但是材料的长度不足(每块板长约1.8~3m)以及平面外稳定性成为了新的问题。

追寻木构——合板格子梁组成互承结构

互承结构的使用类似本案的正方形建筑的设计过程中,通常会把屋顶的竖向荷载均匀地分布在X、Y轴两个方向上,使整个结构体系都参与进来,荷载会同时向两个方向传递,同时两个方向的梁也会相互辅助降低屈曲长度但是,木结构的互承式格子梁很难像钢结构和混凝土结构那样,在同一个节点上交叉、连续,而往往要将X、Y两个方向的梁水平错开,因此垂直放置的合板所组成的互承结构需要在高度上满足合板的尺寸需求。

另外,如果X、Y方向的梁级有很大区别的话,就无法有效地满足平面外稳定性,因此需要设计与X、Y方向梁级相同的互承格子梁为了解决上述合板材料特性和格子梁的问题,提出了互承结构的初步设想本案中的互承结构非常适用于长度有限的合板,也适合将荷载均匀传递至多个不同的方向,因此合板组成的互承式格子梁结构成为本案的最佳结构体系。

另外,还可以通过缩小互承结构格子单元的间距来有效抑制屈曲虽然合板有很多种不同的尺寸和规格,但是最常见、流通最广泛的合板厚度通常为12mm,考虑到梁结构的分布和跨度等因素,因此将5块尺寸为1 200mm×2 400mm的合板用粘合剂胶合成厚度为60mm的板材,作为一个结构单元来使用。

本案互承结构梁的位置是不规则的,通过将T形结构单元网状相连,最终构成互承结构的格子梁对整体互承结构格子梁进行应力分析,由于局部的应力差异较大,设计根据各梁单元的应力情况对梁截面进行优化调整,旨在控制成本和减弱室内空间的变化(图7~9)。

追寻木构——合板格子梁组成互承结构

图 7 互承结构格子梁计算模型

追寻木构——合板格子梁组成互承结构

图 8 格子梁剪力应力图

追寻木构——合板格子梁组成互承结构

图 9 按实际应力设计的梁截面

追寻木构——合板格子梁组成互承结构

节点细部的探讨互承结构直接使用合板,通过格子梁的间隙可以直接看到整个屋顶结构,而这也成为接下来设计中最艰难的课题:梁单元之间的接合方法梁单元的节点为T形,由于梁材厚度为60mm,如果使用传统木结构建筑中常用的榫卯节点,会使梁的缺损比例变大。

由于互承结构本身就是荷载循环式传递的结构体系,所以尽量不要采用将一个构件插入另一个构件之中的组装方式,只能将构件滑动到垂直方向并依次组装我们也讨论过将构件滑动到T形位置后从节点的背面用螺钉或者楔子等打进去的方法,但是由于其强度无法预估而放弃了在合板的多层木板之间打入螺钉的想法。

追寻木构——合板格子梁组成互承结构

图 10 T 形结构单元节点细部通过以上的思考讨论,最终采用钉子和螺钉把合板正交固定的有效方法:在梁构件板材的两端留出固定一条小截面木材的空间,在5片胶合合板中,只延长最边缘两片合板至T形互承结构单元的另一构件表面(图10)。

在T形互承结构的另一构件侧面,固定一条小截面木材,其大小正好可以且完全置于另一合板一端事先预留的卡槽空中,T形单元节点的接合方式则使用传统木结构墙壁(耐力壁)的接合方法安装时可以将一块合板构件滑动至预定安装位的正上方,垂直落下并连接,所以施工方法也变得简单,因此确定将这种接合方法作为最终的连接细部做法(图11,12)。

追寻木构——合板格子梁组成互承结构

图 11 互承结构格子梁施工现场

追寻木构——合板格子梁组成互承结构

图 12 施工时,需将构件移动至预定安装位的正上方垂直落下

追寻木构——合板格子梁组成互承结构

墙壁和立柱的结构设计中,对互承结构传递竖直和水平荷载的支撑结构也进行了分析讨论立柱和墙壁的设置需要适应办公空间,办公室内的剪力墙长度很短,而基础比主体结构整体向内缩进600mm, 地板以下的空间为开放空间,几乎没有预设剪力墙。

同时建筑外墙与玻璃交叉分布,开口较多,很难设置剪力墙因此,与建筑师商讨后,在室内办公空间的外圈设置米字旗状(卍)的木结构剪力墙来承载大部分垂直方向和水平方向的荷载决定外墙部分结构的主要因素并非来自屋顶的垂直荷载,而是建筑外墙所受的水平荷载。

外墙玻璃与实墙部分的排列类似于国际象棋的黑白格分布(市松状),上方开口,下方是墙壁的部分,立柱通高,截面为60mm×150mm,间距800mm而在上方墙壁、下方开口的部分,因开口是过道而不能设置立柱因此,在开口和墙壁的边缘部分高度为2m处设置横梁,将120mm×240mm截面木材横向放置,端部设置与横梁同一截面尺寸的木结构立柱。

立柱通高,侧面与互承结构的梁构件单元相连

追寻木构——合板格子梁组成互承结构

图 13 合板梁与外侧立柱节点(摄影:井上玄)如上所述,根据办公空间的设置,在其外圈的独立房间区域设置“卍”状的木结构剪力墙,建筑最外侧则设置了较为纤细的独立立柱的结构体系,实现了内部空间的灵活自由以及外部空间的开放通透。

追寻木构——合板格子梁组成互承结构

图 14 整体结构爆炸图

追寻木构——合板格子梁组成互承结构

地板下的结构整体抬高架空的基础结构,支撑竖向荷载以及前文提到的“卍”状剪力墙和外圈立柱,最理想的状态是与上部结构一样使用木结构但是一般情况下,木结构基础是设置在混凝土基础之上的,但本案需要把一层架空作为设备预留空间使用,需要尽可能预留地板下空间,因此放弃了混凝土基础的设计思路,转而使用钢结构来完成“悬浮盒子”的设计。

追寻木构——合板格子梁组成互承结构

结语整个建筑考虑到扭转等不利工况,按照竖直和水平力最不利工况布置剪力墙,在剪力墙下方布置“口”字形基础,同于预埋方钢管150mm×150mm×6mm作为柱脚固定的基础结构外圈的支撑结构本来是考虑直接布置在外墙立柱正下方,但是如前所述,基础结构从上部建筑外墙起整体向内缩进600mm,在相应位置设置圆形钢管(101.6mm×5mm),同时设置混凝土独立基础支撑(图15)。

追寻木构——合板格子梁组成互承结构

图 15  地板以下实现开放性钢结构独立柱原文首刊于《建筑技艺》AT2018/12期,山田宪明撰文、陆洋翻译,感谢以上作者的分享!

追寻木构——合板格子梁组成互承结构

 延伸阅读 

追寻木构——合板格子梁组成互承结构

追寻木构——小截面材料建造的开放式餐厅

追寻木构——合板格子梁组成互承结构

Erretegia餐厅,极小截面木材和钢材的组合

追寻木构——合板格子梁组成互承结构

结构材料系列—木材

追寻木构——合板格子梁组成互承结构

弦上的舞蹈——同济大学「风之亭」

追寻木构——合板格子梁组成互承结构

竹结构——轻质高强

追寻木构——合板格子梁组成互承结构

工程竹,一瓶透着现代醇香的古酒免责提示文章中图片仅供分享不做任何商业用途,版权归原作者所有如有问题,请后台联系我们!服务与合作我们很高兴与建筑师合作,提供结构咨询和设计服务如有兴趣,请联系下方小i微信

追寻木构——合板格子梁组成互承结构

方钉百科

© 版权声明

相关文章

暂无评论

none
暂无评论...